Due to open 2027
At St Margaret Mary’s we strive to create a nurturing, supportive and immersive learning environment where our children can thrive, excelling where they are strong and developing in areas they need additional guidance. Our staff and students collaborate to make learning visible through a Catholic lense, while tailoring learning to the unique needs of each child.
We will continue to develop leaders of the future by investing in our teaching staff, building our resources and continuing to review not only how we deliver learning experiences, but the real-life outcomes for our students. Learning at St Margaret Mary’s will retain the fundamental values it does today, with adaptation to incorporate proven research that support our goals.
The community will remain an integral part of the school with both parent and parish groups playing an active role in the schools development. We will continue to build on the current collaborative activities, expanding how we interact with parents and the broader community. The collective approach creates opportunities for family involvement today and in building our school of the future, as well as nurturing the strong ties we enjoy with the wider community.
Learning Space
The school currently has twelve indoor learning spaces with a plan to expand in the future, creating an additional four learning spaces and break out spaces. We will be updating the student toilets and the school yard. Please keep an eye out for our Ai “flythrough” that will be posted online – here – very soon.



Administration Space
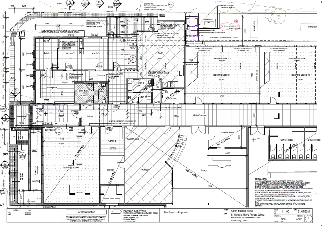
The master plan included the redevelopment of the administration building on the corner of Hudsons Rd and Arras St, which was completed and opened in 2025. This rebuild has significantly modernised and enhanced the school’s facilities, upgrading capability and services to classrooms while also providing additional management, planning and meeting spaces.
The redevelopment also included the re-location of the school entrance to its original position on Arras St as part of its attractive new façade. Today, we enjoy a welcoming, functional and contemporary administration space that supports the day-to-day operations of the school and strengthens connections with our community.

View from corner Arras St. and Hudsons Rd.

View from Arras Street.
